MENU
Read More
1st Floor, 3 Hawthorn Business Park 165 Granville Road London NW2 2AZ
Phone : +44 (0)20 8455 0010 Fax : +44 (0)20 8455 0010 mail@citadel.design
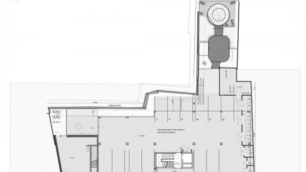
Assist the client to acquire the site, and designed a new block of 14 luxury one, two, and three-bedroom apartments with two commercial units.